Call Us Valuation

Search Properties

Sutherland Road, London

London

£340,000

  • Bedroom Icon x 2
  • Bathroom Icon x 1
  • Bathroom Icon x 1
Department:
Sales
Reference:
34407642
Postcode:
N17 0BN
Type:
Flat
Availability:
Sold STC
Receptions:
1
Tenure:
Leasehold
Leasehold Remaining:
147 years
Council Tax Band:
B

Property features

  • Beautifully presented two-bedroom first-floor flat
  • Entire first floor of an attractive property
  • Bright and spacious living room with bay window
  • Modern fitted kitchen
  • Main bedroom with large fitted mirrored wardrobes

Summary

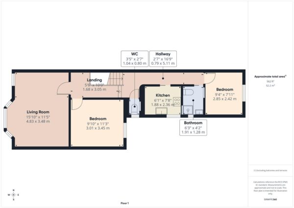
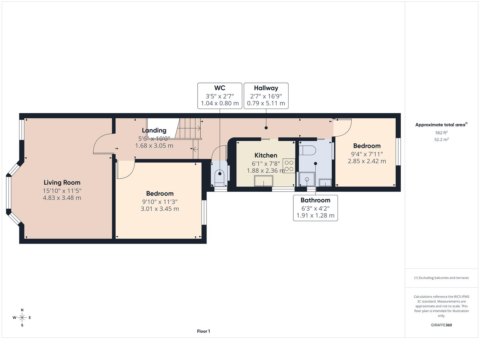
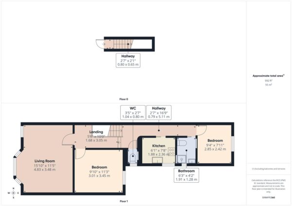
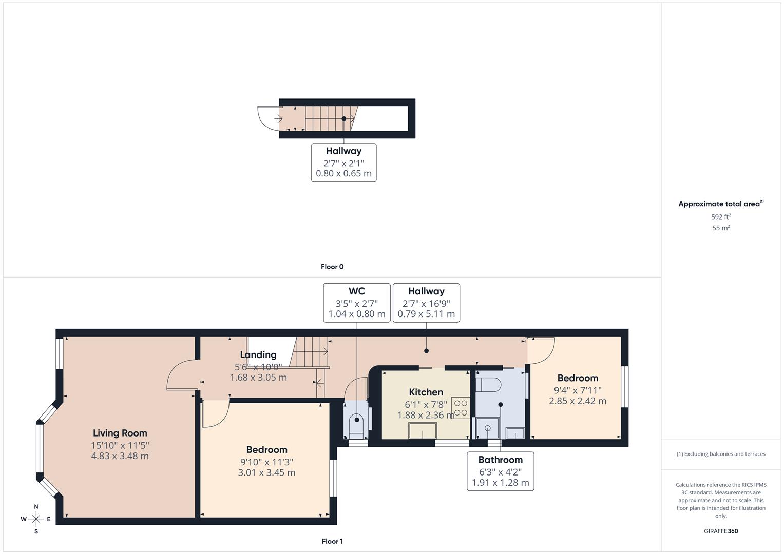
A beautifully presented and spacious two-bedroom first-floor flat on Sutherland Road, offering a blend of period character and modern finishes throughout. This bright and welcoming home is arranged over the entire first floor and provides well-balanced accommodation with a stylish, contemporary feel.

The standout feature is the generous living room, enhanced by a lovely bay window that floods the space with natural light and provides pleasant street views. There is plenty of room for both a lounge and dining area, making it perfect for relaxing or entertaining.

The property offers two well-proportioned bedrooms, with the main bedroom featuring large fitted mirrored wardrobes and a peaceful outlook. The second bedroom works well as a guest room, nursery, or home office.
The modern fitted kitchen is thoughtfully designed with glossy cabinetry, integrated appliances, and good storage. The flat also benefits from a smart contemporary bathroom and a separate WC, both accessed from the bright hallway.

Additional highlights include double glazing, gas central heating, and a clean, well-maintained finish throughout.
Sutherland Road is a quiet residential turning just moments from the green open spaces such as Lordship Recreation Ground and Bruce Castle Park. Excellent transport links are close by, with Bruce Grove and White Hart Lane Overground, and a variety of bus routes offering quick and easy access to Central London and surrounding areas.

An ideal home for first-time buyers, young professionals, or investors looking for a high-quality property in a popular North London location.

Floor Plans

EPC

Request Further Details

Or arrange a viewing

Latest News & Updates

How to Bleed Your Radiators 21st February Advice

How to Bleed Your Radiators

Eliminate Trapped Air for Optimal Radiator Performance Bleeding your radiators constitutes a vital aspect of preserving your heating system’s efficiency.…

Read More
How to Defrost Your Boiler's Condensate Pipe 2nd February Advice

How to Defrost Your Boiler's Condensate Pipe

Maintaining your boiler’s efficiency during the winter months is crucial, and understanding how to thaw your condensate pipe is a…

Read More
How to Repressurize Your Boiler 15th January Advice

How to Repressurize Your Boiler

Maintaining optimal pressure in your boiler is essential for its efficiency and longevity. One crucial aspect of boiler upkeep is…

Read More